【売却済】尻手倉庫
- 所在地
-
所在地
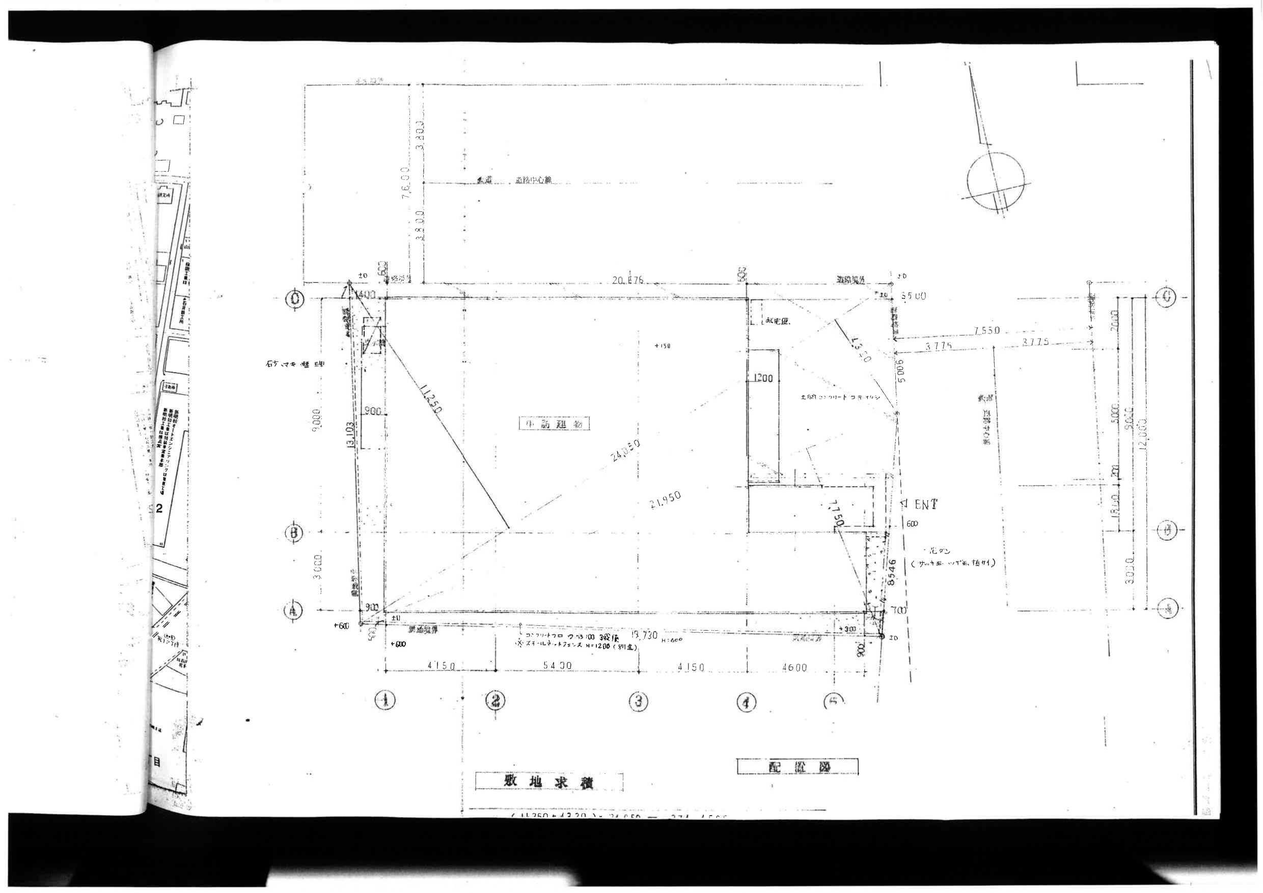
神奈川県横浜市鶴見区尻手3丁目1-21
地番
神奈川県横浜市鶴見区尻手3丁目328番6
交通
JR南武線 「尻手」駅 徒歩 約9分
JR東海道本線・京浜東北線・南武線「川崎」駅 徒歩 約24分
- 土地
-
面積
270.79㎡ (81.91坪)
道路
北側 公道 約7.6m
東側 公道 約7.5m
- 建物
-
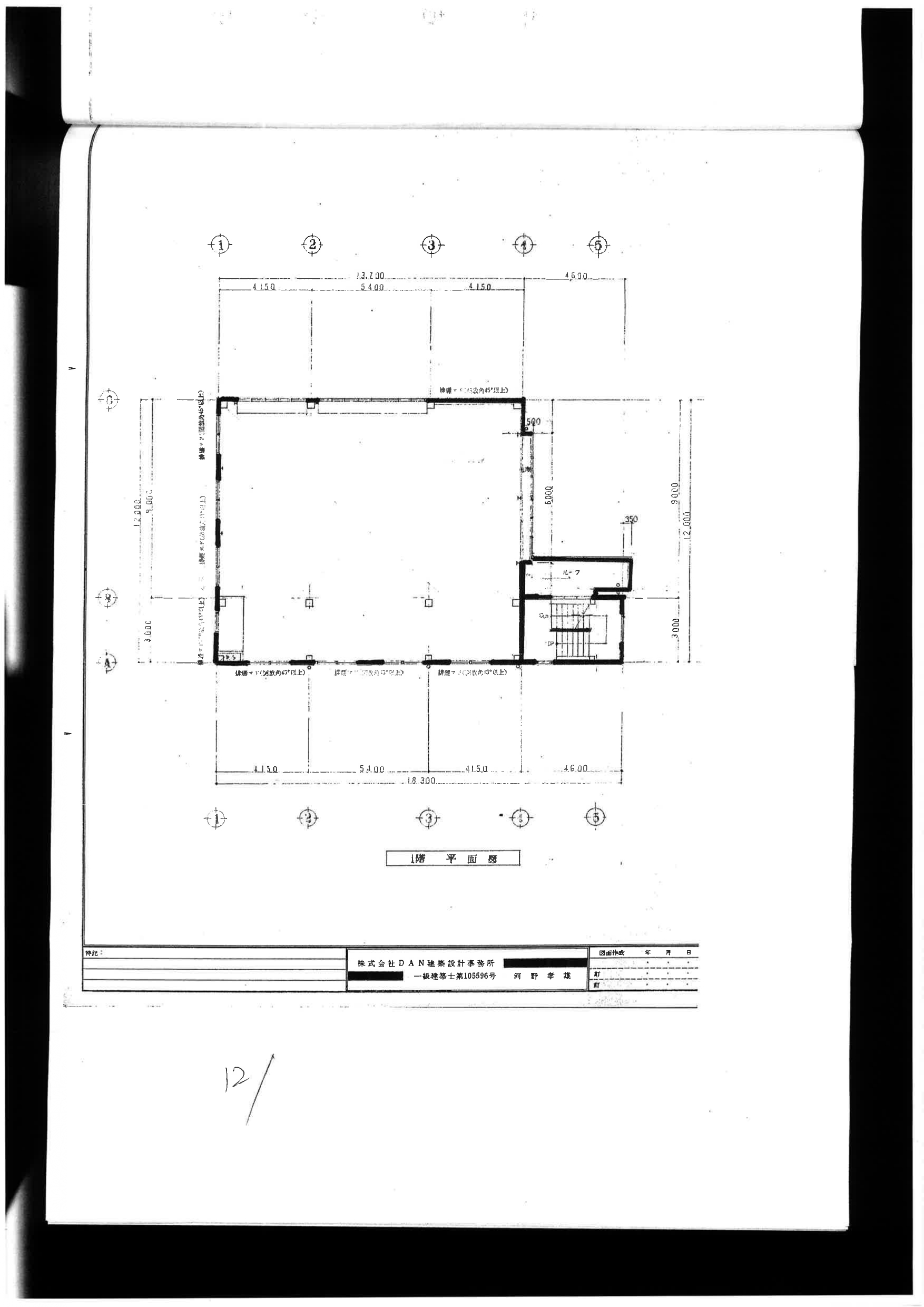
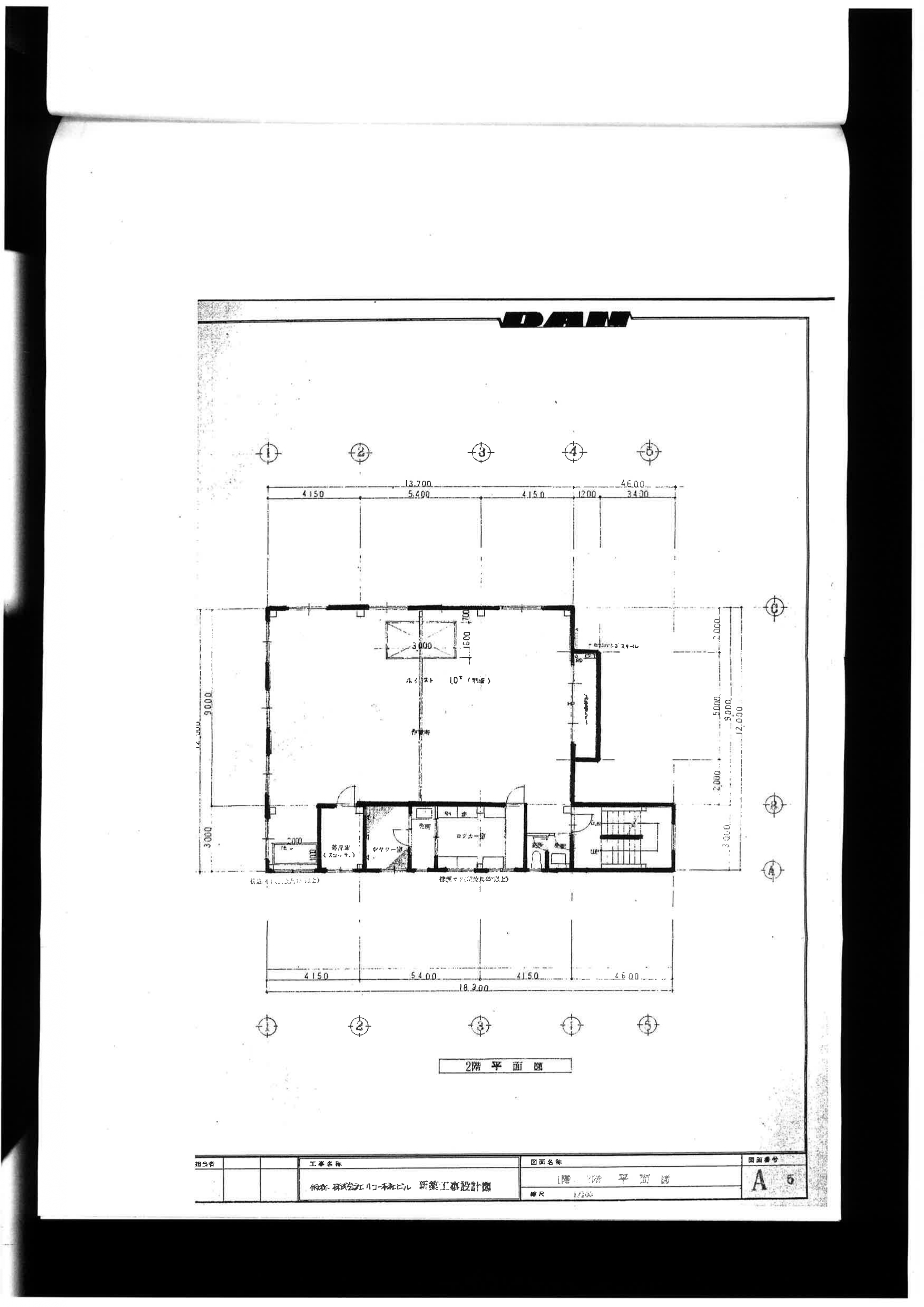
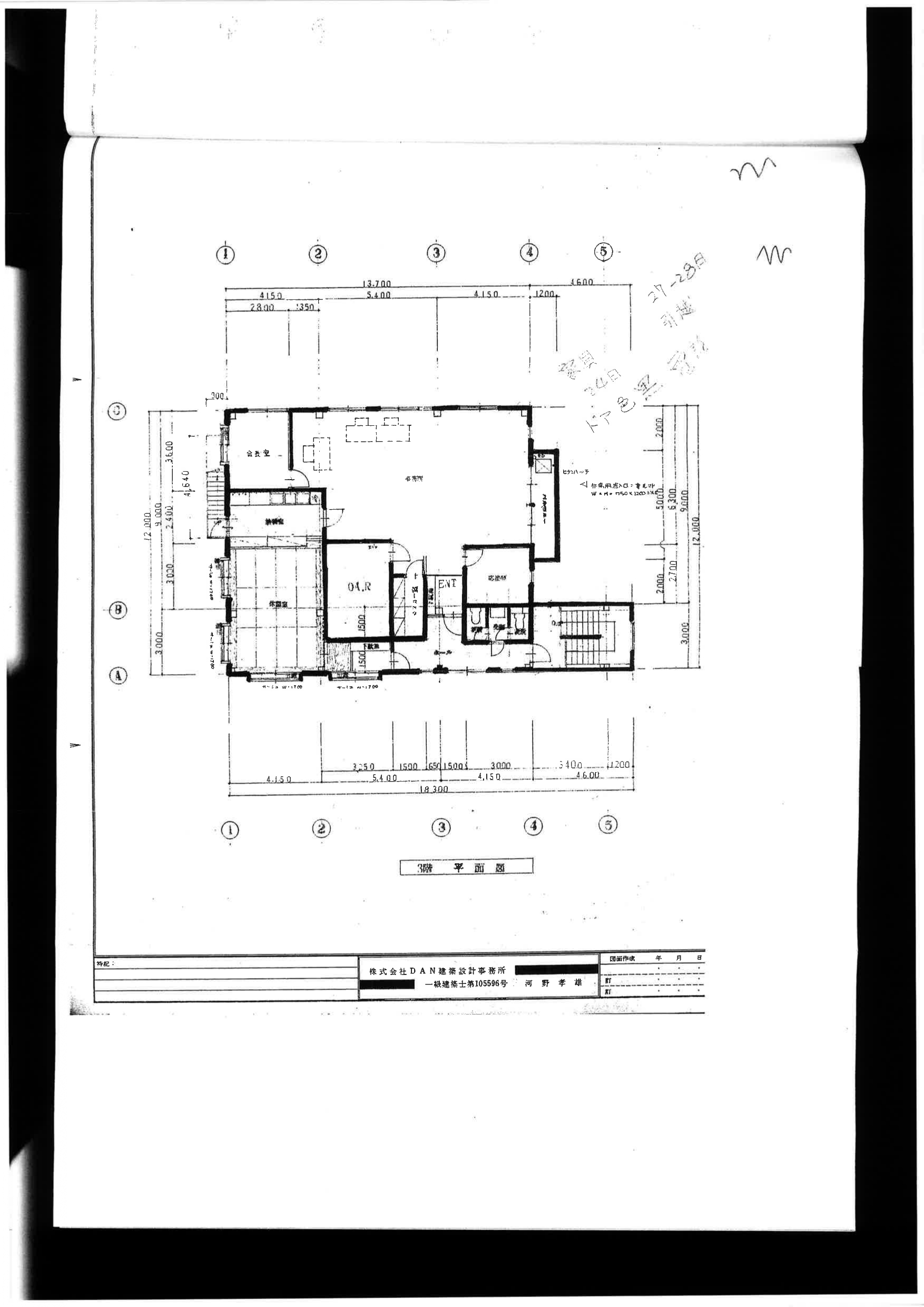
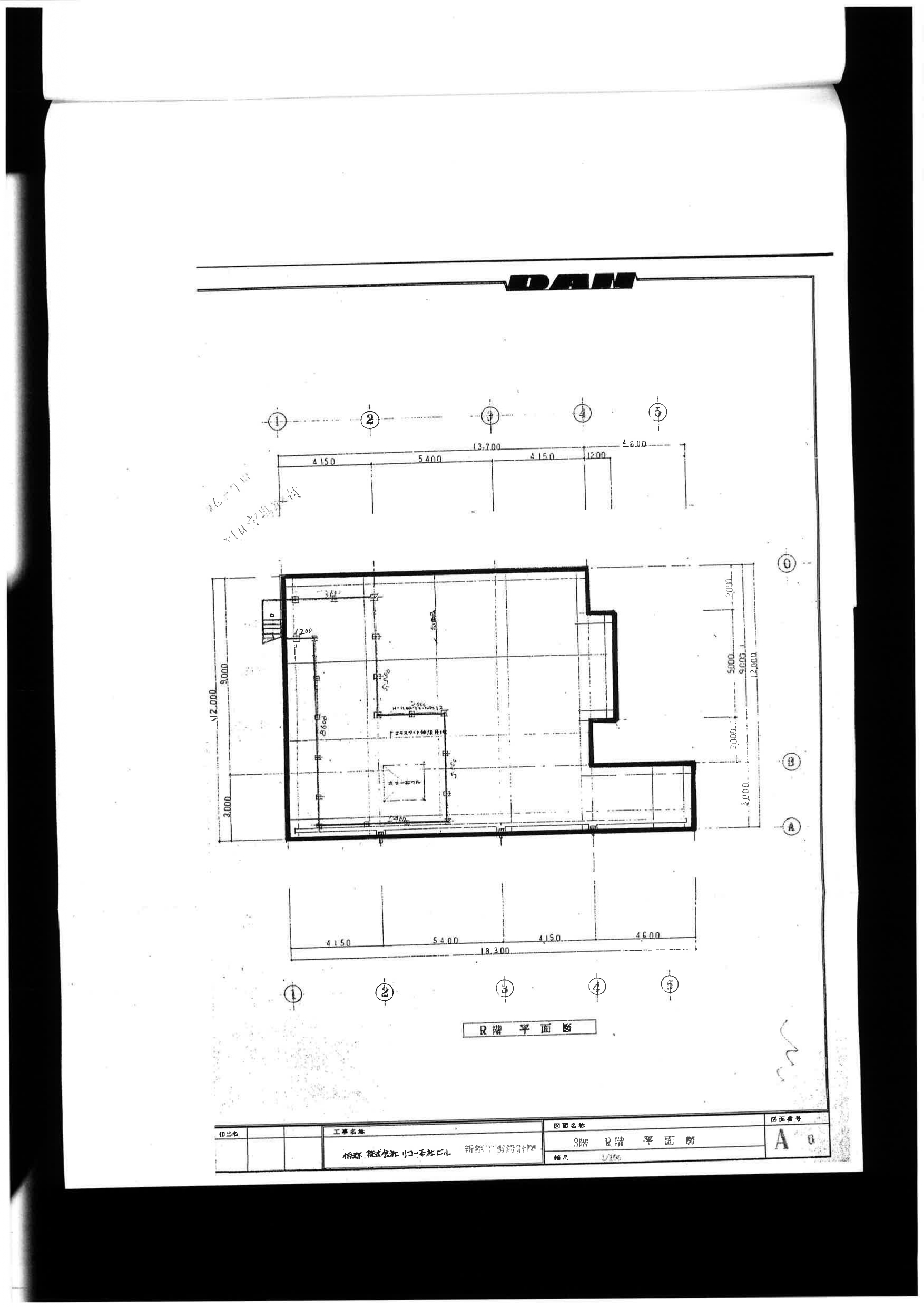
構造
鉄骨造陸屋根 3階建
築年月
1988年10月
延床面積
537.84㎡ (162.70坪)
種類
事務所・作業所
検査済
有り
- 都市計画
-
用途地域
工業地域
建蔽率
60%
容積率
200%
- その他
-
備考
・工業地域
・約7.6m×約7.5mの角地












