【売却済】若松町倉庫
- 所在地
-
所在地
千葉県千葉市若葉区若松町531-79
地番
千葉県千葉市若葉区若松町531番79
交通
JR総武本線「都賀」駅 徒歩 約19分
京葉道路「穴川」IC 約3.6㎞
- 土地
-
面積
703.00㎡ (212.65坪)
道路
南西 公道 約7m
- 建物
-
構造
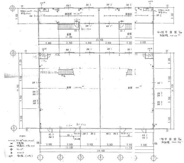
鉄骨造亜鉛メッキ鋼板葺 2階建
築年月
1992年8月
延床面積
414.18㎡ (125.28坪)
種類
倉庫・事務所【収益物件】
検査済
有り
- 都市計画
-
用途地域
市街化調整区域
建蔽率
60%
容積率
200%
- その他
-
備考
・収益倉庫2棟、満室稼働中



