【売却済】坂戸Ⅰ倉庫
- 所在地
-
所在地
埼玉県坂戸市多和目866-3
地番
埼玉県坂戸市大字多和目字平866番3、865番5
交通
東武越生線「川角」駅 徒歩 約27分
圏央道「圏央鶴ヶ島」IC 約7km
- 土地
-
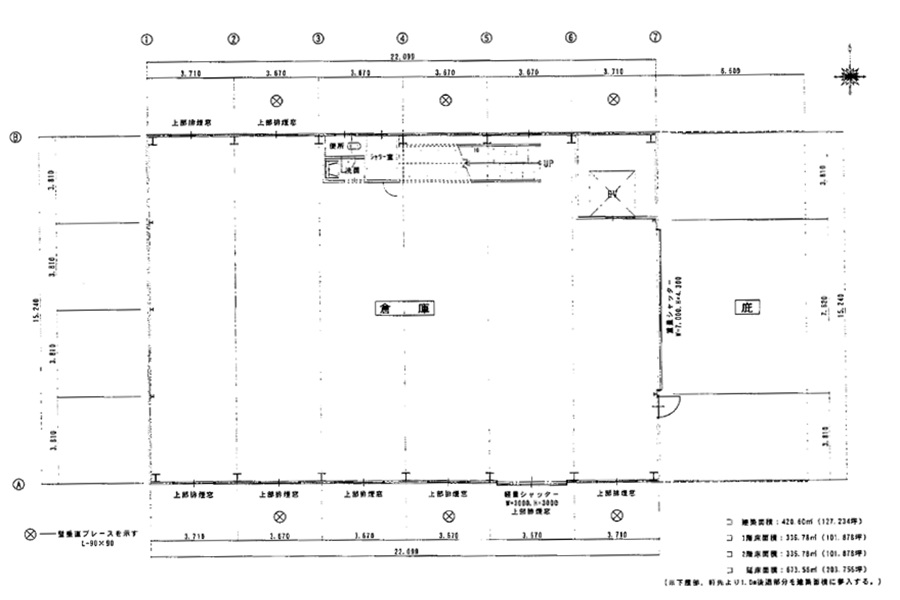
面積
915.00㎡ (276.79坪)
道路
東側 公道 約9.0m
- 建物
-
構造
鉄骨造亜鉛メッキ鋼鈑葺 2階建
築年月
1986年7月
延床面積
643.18㎡ (194.56坪)
種類
倉庫【収益物件】
検査済
無し(増改築の申請無し)
- 都市計画
-
用途地域
市街化調整区域
建蔽率
60%
容積率
200%
- その他
-
備考
収益物件















